12-Î

Подземный переход, площадь Дмитрий Кантемир
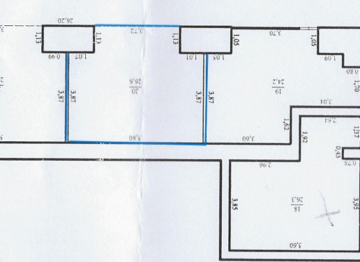
Характеристика лота
  • Адрес: Кишинэу сектор Буюкань, площадь Дмитрий Кантемир
  • Площадь: 26,60 кв.м
  • Этаж(тип): -1
  • Тип: Имущественный найм
  • Срок(лет): 5
  • Первоначальная стоимость годового найма (лей): 40 000
Cчёт

Для пенсионеров, людей с ограниченными возможностями и ветеранов, с условием что являются собственниками недвижимого имущества в зданиях или прилегающих дворах,стоимость билета участника составляет 0,1 от минимальной зарплаты по экономике


у